Properties -- Page 9

Sold
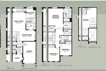
$1,049,000
69 Minnock Street, Caledon, Ontario L7C 4K8
  • 3Beds
  • 4Baths
865 Listings